210-Bed Farouk Medical City (FMC)

Location: Sulaymaniyah, Iraq

Area: 70,000 m2                          

Capacity: 210 Beds expandable to 400 Beds

Scope of Work: Design and Medical Equipment Supply as a Turn-Key Project

Client: Farouk Medical City

Project Description:

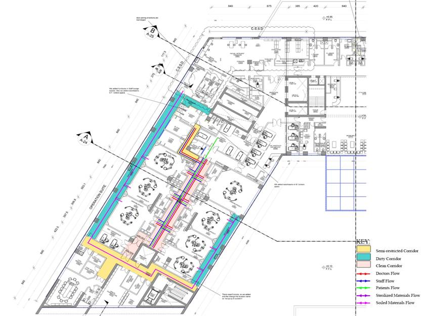
The project involves the design and detailed planning of the surgical core for a 150-bed hospital. This includes 12 modular operating theaters and sterilization facilities (TSU-CSSD) along with various supporting functions. The FMC Hospital also features 41 specialized outpatient clinics, complemented by advanced medical and engineering facilities.

Turnkey Projects for the Following Departments: 

  • Modular Solutions for 12 Operating Theaters.
  • Central Sterile Services Department (CSSD) and Theatres Sterilization Unit (TSU).
  • Ophthalmology Outpatient Clinics and Surgical Systems.
  • All Fixed Equipment for Operating Theaters and Critical Care Facilities, including Pendants, Surgical Lights, and Surgical Tables.
  • Operating Theaters IT Solution.
  • Surgical Instruments of All Applications.
  • Endoscopic Systems.
  • Ultrasound Imaging Systems.
  • Medical Gases.

share: